Önkormányzati beruházás
A kultúrházzal szemben megkezdődött az építkezés.
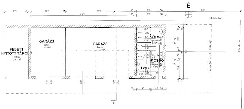
Az önkormányzati tulajdonú telken az egykori lakóépület helyén egy garázs és tároló funkciójú épület fog állni. Az alapozás megtörtént november közepén, most már a falazási munkát végzik a kőművesek. Az építkezés várhatóan 2022-re fog befejeződni. Önerős beruházásból, TETT-es forrás felhasználásával épül a gépek és eszközök tárolására szolgáló létesítmény.