Ugrás a tartalomhozUgrás a fő navigációhoz Ugrás a lábléchez

Magyar Falu Program

Feked a tavalyi évben csaknem 20 millió forintot nyert „A nemzeti és helyi identitástudat erősítése” pályázati alprogramban. Az összeg a 2020-as évben a kultúrház mosdóblokkjának és elektromos hálózatának felújítására, közösségszervező bérére és eszközbeszerzésre fordítható.
E pályázat támogatásával idén sok közösségi, művelődési, sport és szabadidős lehetőséget igyekszünk biztosítani a fekedieknek és a falunkba látogatóknak. Közösségszervezőként Peck Tiborné dolgozik. Az eszközlistában sportszerek, játékok és konyhai eszközök szerepelnek, pontosításáról még zajlanak az egyeztetések.

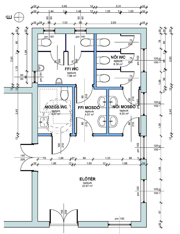
Januárban megkezdődött a kultúrház felújítása. Az előtérből nyíló mellékhelyiségek és raktár helyén új mosdócsoport épül, nemcsak női és férfi, hanem külön akadálymentes illemhely is. Ezek nemcsak a falusi nagylétszámú rendezvények lebonyolítását könnyítik majd meg, hanem a turistacsoportok kulturált kiszolgálását is lehetővé teszik.